『原宿・北参道レンタルスペース』(原宿 SPACE GALLERY)は、
副都心線 北参道駅から徒歩3分、JR代々木駅、原宿駅から徒歩9分と、 お客様に来て頂くのに、大変便利な場所に
立地しております。
外観は全面バラス張り、コンクリート打ちっぱなしのデザインビルです。明治通りから1本奥に入った、落ち着いた静観な
場所にあります。
内部は白を基調としたシックな壁で、天井高は280㎝、玄関から入ってすぐに吹き抜け空間が広がり、その開放感に癒されます。床はホワイトライムストーンをベースに、中央はフローリングの床張りとなっており期の柔らかさ木目とライムストーンの硬質 穏かな石柄がアクセントとなり互いに引き合ってモダンな空間を創出しています。
アパレル関係&アクセサリー、靴、アウトドア製品の展示会、映画撮影、CM撮影、テレビ撮影、商品の撮影、セール&各種催事、
美術の各種展覧会や個展、セミナーや、研修会場、ヨガ教室、生け花教室など等、幅広くご利用いただけます。
スペースは、
①メインスペース
②小スペース(奥側)
③1Fフロントスペース がございます。
❖広さ、1時間当たり料金
①メインスペース:100㎡ 30坪 13,750円(税込)/時間
②小スペース : 42㎡ 13坪 7,150円(税込)/時間
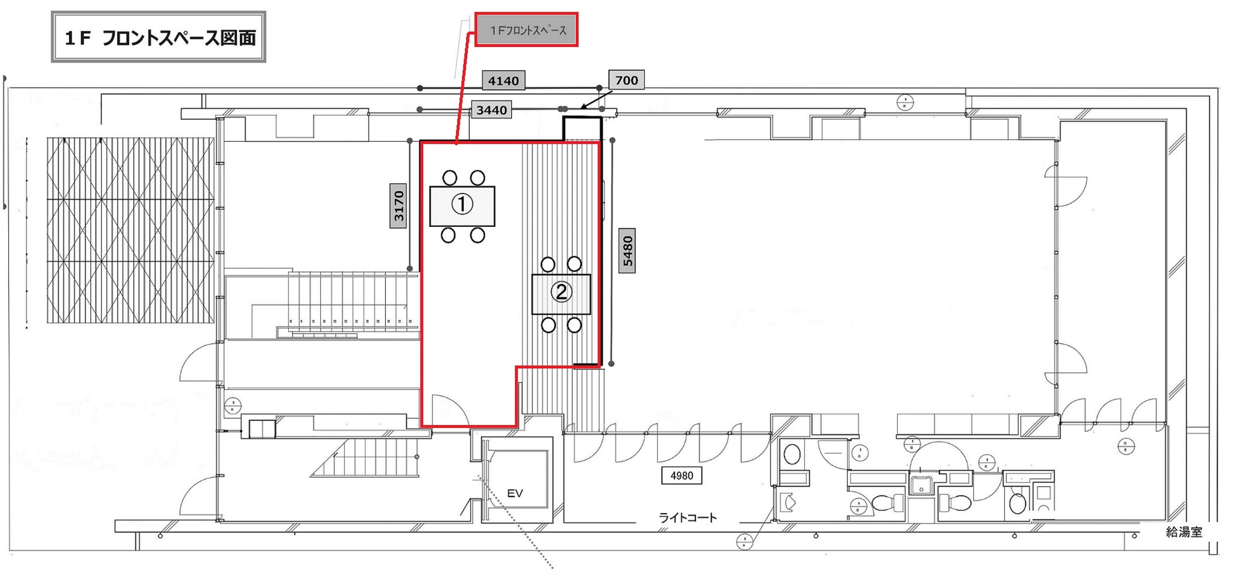
③1Fフロント : 22㎡ 6坪 3,850円(税込)/時間
■什器関係
■有 償 : ラック、組立型テーブル、プロジェクター、大型ディスプレイ












■無 償 :常設テーブル、椅子、ディスプレイ用のテーブル
※詳細はお問い合わせください。





■メインスペースと小スペース図面

■1Fフロントスペース図面

■ご利用目的
アパレル関連、ジュエリー、ファッション雑貨展示会、Sale会場、ギャラリー等、の会場としてお貸し致します。
但し、反社会的集団(暴力団・暴走族・過激な組織的団体など)の構成員、団体、又は公序良俗に反する内容の
ものについては、お貸しできません。
| 金 05/01 | 土 05/02 | 日 05/03 | 月 05/04 | 火 05/05 | 水 05/06 | 木 05/07 |
|---|---|---|---|---|---|---|
予約締切 利用開始から3日前まで
最短利用時間 3時間から
予約形式 予約リクエスト(承認制)
■時間貸し基本プラン
10:00 ~ 19:00 の範囲内で3時間からご利用可能です。
①メインスペース:100㎡ 30坪 13,750円(税込)/時間
②小スペース : 42㎡ 13坪 7,150円(税込)/時間 ※オプション
③1Fフロント : 22㎡ 6坪 3,850円(税込)/時間 ※オプション
※早朝9:00~、 終了19:00~延長最終22:00までにつきましては、
割増単価となりますので、お問い合わせ下さい。
※①、②、③ 全てのスペースをレンタルすることも可能です。
予約締切 利用開始から3日前まで
予約形式 予約リクエスト(承認制)
■メインスペース1日貸切り基本プラン
基本時間:10:00 ~ 19:00
①メインスペース:100㎡ 30坪 121,000円(税込)/日
※②小スペース : 42㎡ 13坪 60,500円(税込)/日(オプション)
※③1Fフロント : 22㎡ 6坪 33,250円(税込)/日(オプション)
※早朝9:00~、 終了19:00~延長最終22:00までにつきましては、
割増単価となりますので、お問い合わせ下さい。
※①のメインスペース以外に、 ②、③を合わせて、全てのスペースをレンタルすることも
可能です。 合同で展示会を開催されるお客様で、
①メインスペースと②小スペースを、合わせて借りられるお客さまが結構いらっしゃいます。
予約締切 利用開始から3日前まで
予約形式 予約リクエスト(承認制)
③1Fミニスペース : 22㎡ 6坪 33,000円(税込)/日
※早朝9:00~、 終了19:00~延長最終22:00までにつきましては、
割増単価となりますので、お問い合わせ下さい。
※1Fのスペースということで、アパレル商品の短期の仮店舗としてご利用することも可能です。
あまり費用をかけたくなく、また商品数量もそれほど多くなく、小さなスペースで展示会を考え
ていらっしゃるお客様には丁度良いスペースかと思われます。
| 電話番号 | 0357706866 |
|---|---|
| 住所 | 〒1510051 東京都渋谷区千駄ヶ谷3-13-7 原宿OMビル |
| 営業時間 | 10:00 - 19:00 |
| 広さ | 100㎡ |
副都心線 北参道駅 徒歩 3分
JR山手線 代々木駅 徒歩 9分
JR山手線 原宿駅 徒歩 9分
JR総武線 千駄ヶ谷駅 徒歩13分
※予約成立日時がご利用日の14日前を過ぎている場合:キャンセル料金は申込料金の50%を請求
※予約成立日時がご利用日の7日前を過ぎている場合:キャンセル料金は申込料金の100%を請求